Hola chicos... ¿Cómo llevamos estos días de verano & vacaciones?
Bueno...después del mal trago de las notas, espero que ya estéis con más ganas para poneros manos a la obra y poder pasar la asignatura holgada y cómodamente ¿vale?
Os voy a hacer un "recordatorio" de los trabajos que tenéis que entregar en Septiembre y reforzar lo que tenéis que estudiar.
Con una buena organización y "con ganas" os dará tiempo de sobra, primero tenéis que plantearos la forma de actuar ante el examen...
Espero que hayas optado por quedarte conmigo...y pasar al año que viene "limpio"...pues..ánimo y ¡¡empezamos!!.
Bueno, sabéis que la asignatura se divide en dos partes:
una teórica (estudiar los siete temas que hemos visto en el curso, tienes el libro digital a tu disposición en ecasals.net con la contraseña de mariah...en la parte inferior...este es el enlace directo:http://www.ecasals.net/index.php?ps=0be95bd55f4e2f414330b94ed744a2a15c03444d2db404a7ae41214845aa456e73c6bf7ef8&user=mariah , haz hincapié en las preguntas de verdadero y falso de "modela tus competencias" y en lo que se amplía de teoría en los dossier de teoría de 3º)
y otra práctica (las fichas, que en verano serán sustituidas por un mínimo de actividades referentes a ellas...además también habrá parte práctica en el examen sobre las vistas de una pieza, en la mayor parte)
Actividades para Septiembre
Se presentarán en un bloc de Din A-3, con el nombre y el curso en la cubierta.
Las actividades se presentarán en orden, poniendo en la parte inferior derecha qué actividad es y por detrás de cada hoja se explicará detalladamente los pasos que se han seguido, dificultades que se han tenido durante los ejercicios..."novedades" que hayas incluido...etc.
¿Cómo empezamos?
Tema 1 Actividad 5
Imágenes bivalentes
Tienes que crear una imagen de este tipo siguiendo los siguientes pasos...En la primera hoja, y como primer paso, realiza dos pruebas a partir de las imágenes proporcionadas( las de las ficha y las que te proporciono aquí). Modifica los contornos hasta que la parte que ahora hace de fondo represente algo. Trabaja con lápiz blando para poder borrar fácilmente los trazos de prueba. Al final puedes presentar los esbozos con rotulador.

En la segunda hoja, realizaremos el segundo paso: debes elegir la imagen que más te guste, y realizar la versión definitiva de la imagen bivalente que más te haya gustado de las tres que hayas diseñado en la hoja anterior. Escoge la técnica más adecuada a las características del diseño que has elegido. Si tienes que elaborar el trabajo con tintas planas, la pintura al temple o el papel recortado son las técnicas más adecuadas. En cambio, si quieres realizar un trabajo con colores matizados, es preferible utilizar los lápices de colores o la acuarela.
Tema 2 Actividad 3, 4 y 5
Actividad 3
Aspectos comunicativos del color
El color es uno de los elementos fundamentales del lenguaje visual por sus propiedades expresivas. Dinamismo, elegancia, frescura, tranquilidad, placidez ...son sensaciones en las que la expresividad del color juega un papel determinante.
En este ejercicio debes manipular la forma y el color de las palabras con el objetivo de que se refuercen mutuamente para conseguir que su significado sea más expresivo. Fíjate en los ejemplos de los graffitis y las fotos que tienes aquí y en la ficha.


Dibuja suavemente con lápiz hasta que obtengas el efecto deseado y, después, acaba el trabajo con rotuladores o tintas de colores. La acuarela puede ser también una buena técnica para este trabajo.
Puedes ampliar tus conocimientos de las diferentes técnicas en los siguientes enlaces...elige el que creas más adecuado a tus diseños...
Lápices de colores aquí
Acuarela aquí
Acrílico aquí
El ejercicio hay que hacerlo en dos hojas, la primera que corresponda a la palabra: "Flexible" y la segunda hoja a la palabra "Horror", dando a sus letras las formas y los colores más adecuados a su significado para reforzar la sensación indicada.
Actividad 4
Color
El "Fauvismo" se puede considerar el primer movimiento artístico de vanguardia del siglo XX. Fauve significa "salvaje", y representó una ruptura radical con el tratamiento que, hasta entonces se había concedido al color de las composiciones artísticas.
Fíjate en estos tres bodegones de Matisse y en la manera tan personal de usar los colores. Realiza dos estudios de bodegones utilizando el color de la manera más expresiva posible, dividiendo la hoja en dos partes iguales Busca diferentes elementos que estén a tu alcance y disponlos como más te guste, dibújalos y píntalos al estilo fauve.
Henri Matisse Retrato de A.Derain.1905

Retrato de A.Derain.1905 Gran interior rojo.1948 Frutos y bronce 1910
Primero, dibuja con lápiz la distribución de los elementos y después añade el color con barras de ceras, con fuerza y determinación. El color es el protagonista de estos dos trabajos.
Técnica de Ceras aquí
Actividad 5
Color
Elige una de las dos pruebas de bodegones que has elaborado en la hoja anterior y realiza la interpretación definitiva adaptada a la hoja del bloc. Esta vez tienes que utilizar una técnica mixta, es decir que debes mezclar diferentes materiales para potenciar la expresividad del trabajo: pasteles, temple, ceras, collage de papeles o de otros materiales...Tienes que actuar con valentía y trasgresión y, sobre todo, recuerda que el color es el protagonista de este trabajo.
Técnica de Pastel aquí
Técnica de gouache aquí
Técnica de collage aquí
Tema 3 Actividad 2
La composición artística
Los mosaicos nazaríes se caracterizan porque el módulo que los forma se ha construido modificando una figura geométrica básica. La figura resultante tiene la misma superficie que el original pero diferente forma.
Debes realizar tu propio mosaico, partiendo de un cuadrado, usa el mismo principio que los nazaríes .Fíjate en las siguientes imágenes:


Primer paso: Recorta una parte del cuadrado y ve añadiéndola en una posición distinta hasta completar el módulo, dibujando el proceso en varios pasos (como se ve en la imagen en el llamado"pez volador")
Segundo paso:ya en la siguiente hoja, dibuja con lápiz sobre una cuadrícula, que deberás hacer previamente de
0,5 x 0,5cm, la red modular del mosaico y aplica color con la técnica que creas que es más adecuada.
Tema 4 Actividades 5, 6 y 7
Cuando el Arte nos habla
El retrato es un género artístico cultivado desde la Antigüedad hasta nuestros días. El artista puede elegir entre un amplio repertorio de estrategias compositivas y expresivas. Para conseguir representar mejor el personaje y su psicología muchas veces se incluye algún elemento asociado a la profesión o a las aficiones del retratado.
Los ejemplos que se reproducen son retratos, autorretratos o caricaturas de pintores que reflejan varias maneras de componer, diferentes estilos y expresividades. En todos los casos, los artistas han incluido la paleta de pintor como atributo de la profesión.
W.Hogarth,pintando a la musa de la comedia. 1764

Edgar Degás. Retrato de Henri Michel-Levy en su estudio.1879
Marc Chagall Autorretrato con siete dedos.1912

Caricatura de pintor
Actividad 5
Escoge una de estas obras para analizar: Pintor-Opción compositiva utilizada-Explica por qué con un esquema-Tipo de expresividad. Puedes realizar la actividad en una hoja a parte y graparla junto con las siguientes actividades.
Actividad 6
En una hoja:Elabora un autorretrato que incluya elementos que representen alguna de tus aficiones. Ten en cuenta las posibilidades compositivas y las expresivas cuando te plantees la imagen.
Elige la técnica más adecuada y piensa si quieres utilizar el blanco y negro o el color. Realiza primero varios borradores o bocetos para poder probar varias formas de hacerlo y, elegir posteriormente el definitivo.
Actividad 7
Escoge uno de los borradores que has elaborado en el ejercicio anterior y traspásalo a otra hoja del bloc realizando buenos acabados. Utiliza la técnica más adecuada según los resultados que quieras conseguir.
Técnicas secas
Tema 5 Actividades 1, 4, 5 y 6
El sistema diédrico
Los fundamentos del sistema diédrico
El sistema diédrico permite representar de manera precisa las formas tridimensionales de un objeto. El alzado , la planta y el perfil son las vistas principales. En el ejemplo resuelto puedes verlas representadas con las correspondencias coloreadas: el rojo relaciona las alturas, el verde hace corresponder las anchuras u el azul concuerda las profundidades del objeto.
Actividad 1
Debes realizar y completar la representación diédrica de las piezas de la ficha(página 25) tal como se ha hecho en el ejemplo. Dibuja las vistas que faltan y traza las líneas de correspondencia con los colores indicados.
Ten en cuenta lo siguiente:
*La correspondencia entre planta y perfil, indicada en color azul, puedes trazarla con rectas de una inclinación de 45º
*La posición de las vistas está indicada en cada caso con un triángulo de colores.
*Los colores indicados en la perspectiva te ayudarán a interpretar las medidas de cada objeto.
*Recuerda que las líneas ocultas se tienen que dibujar con línea de trazos.
*Empieza dibujand en lápiz y cuando estés seguro del resultado obtenido repásalo con un rotulador negro.
Actividad 4
La normalización industrial
El croquis acotado es el primer paso en la representación de la forma y las dimensiones de un objeto. Se realiza a mano alzada respetando las normas de representación. El dibujo de las vistas es aproximado, pero se procura respetar las proporciones entre las formas. Después se acota indicando las medidas reales del objeto. Abajo puedes ver un ejemplo.
Realiza los croquis acotados de los dos objetos representados en la ficha. Primero, representa a mano alzada las vistas con lápiz duro. Añade las correcciones que sean necesarias para obtener un buen resultado. Repasa las líneas definitivas con lápiz blando para obtener el trazado grueso con los contornos. Finalmente, añade las acotaciones que concretarán las dimensiones de cada pieza. Obtendrás las dimensiones midiendo con la regla directamente con la perspectiva representada. Recuerda que cada dimensión debe figurar sólo una vez en la vista que mejor la represente.
Actividades 5 y 6
El programa de dibujo vectorial QCAD permite crear planos con gran precisión. En la próxima actividad deberás usarlo para crear el plano de la pieza representada en perspectiva militar.
Primero elaborarás el croquis acotado de la pieza con las tres vistas, planta, alzado y perfil. Dibújalas en la primera hoja (que servirá para hacer el trabajo de la próxima actividad). Usa lápiz duro y blando para poder distinguir el grosor de las líneas.
A la hora de imprimir deberemos tener en
Tema 6 Actividades 2, 3, 4 y 6
Dibujo en perspectiva
La perspectiva cónica
Actividad 2
Para trazar correctamente una perspectiva cónica frontal se deben situar bien los puntos que la definen. En el ejemplo resuelto, se ha representado la perspectiva de una habitación en la que figura la línea de tierra(LT); la línea del horizonte (LH), que contiene le punto principal (P) y los puntos métricos (D1 y D2). Los datos de esta habitación se indican mediante la representación de tres paredes abatidas alrededor de la planta.
Siguiendo el ejemplo, deberás trazar la perspectiva de la habitación que encontrarás representada.Calca el plano del cuadro con los elementos geométricos correspondientes que está preparado en la ficha a la hoja del bloc: LT, LH, P, D1 y D2. Deberás dibujar la perspectiva a escala 3:1 ; es decir, deberás multiplicar por tres las medidas de los datos.
Empieza trabajando con lápiz, después repasa el resultado con rotulador de punta fina y, finalmente, acaba tu dibujo coloreando el suelo, las paredes, la puerta, la ventana y los cuadros.
Actividades 3 y 4
La ambientación de las perspectivas
Primera hoja:
Sombras en perspectiva axonométrica.
Las sombras incrementan la ilusión de corporeidad de los cuerpos. Para dibujarlas en perspectiva axonométrica debemos situar la posición del sol y la dirección de las sombras . El triángulo ABC contiene la dirección de los rayos luminosos (lado AC), la dirección de las sombras (lado BC) y la altura del sol (lado AB). Para determinar la extensión de la sombra, deben buscarse los puntos de proyección sobre el suelo trazando rectas paralelas al triángulo. La dirección del rayo, que pasa por la parte superior del objeto, y la dirección de la sombra, que pasa por la parte inferior, se cortan en un punto del suelo que determina hasta donde llega la sombra, como puedes observar en el ejemplo.
Segunda hoja:
Sombras en perspectiva cónica.
El método para trazar sombras en perspectiva cónica se ajusta al principio general que dice que todas las rectas paralelas a una dirección convergen en un mismo punto de fuga. Por lo tanto, se debe situar la posición del Sol (S) y su proyección sobre la línea de tierra (S').
Desde estos puntos deben trazarse las rectas que pasan por la parte superior e inferior de cada lado del objeto para obtener la proyección de la sombra. En el ejemplo, el punto P es hasta donde llega la sombra producida por una de las aristas verticales del objeto.
Siguiendo el procedimiento explicado, traza las sombras que la iluminación solar producirá sobre el objeto representado. Como en la actividad anterior, trabaja con lápiz de grafito y concreta con tonos de gris las sombras obtenidas.
Actividad 6
Google Sketch Up
Divide una hoja del bloc en dos partes.
Una vez que te hayas familiarizado con el programa , realiza el diseño de un parque público similar al ejemplo. Puedes reproducir los mismos elementos , cambiándolos de lugar o modificándolos la forma, pero intenta conseguir un resultado realista. Después aplicarás los materiales y añadirás los componentes hasta obtener una buena ambientación. Finalmente, aplica la representación de formas.
Antes de empezar, con lápiz y en la mitad de la izquierda , deberás elaborar un croquis, con la planta y el alzado, para decidir la posición de los elementos principales que constituyen el diseño. Cuando hayas realizado tu diseño, imprime el resultado y pégalo en la otra mitad de la hoja.
Tema 7 Actividades 1,2 y 4
Las imágenes digitales
Actividad 1
Píxeles, vectores y colores.
En este ejercicio vas a utilizar un programa de dibujo que permite transformar una imagen fotográfica bitmap en una imagen vectorial, llamado INKSCAPE.
Deberás crear un cartel que anuncie un acontecimiento deportivo, siguiendo los pasos siguientes:
1...Consigue una fotografía de tu deporte favorito.
2...Abre el programa de dibujo vectorial Inkscape.
3...Dale formato a la página con la opción Archivo/Propiedades del documento...selecciona A4 vertical.
4...Importa tu fotografía con Archivo/Importar...
5...Vectoriza la foto con la opción Trayecto/vectorizar Mapa de Bits...
6...Sobre la fotografía aparecerá el dibujo vectorial. Este dibujo está constituido por cuatro formas superpuestas que están agrupadas (corresponden a las cuatro pasadas indicadas en el paso anterior)Para desagruparlas y poder modificarlas activa la opción Objeto/Desagrupar.
7...Una vez desagrupadas, podrás cambiar el color de cada forma. Para que resulte más sencillo, puedes desplazarlas.Las herramientas de rellenar y de Degradados te ayudarán a . modificar los colores. Cuando hayas acabado, vuelve a colocarlas en su posición.
8...Puedes aplicar algún filtro para mejorar el resultado.
9... Sitúa el texto para anunciar el acontecimiento, indica la fecha y el lugar donde se llevará a cabo.
10...Guarda el trabajo, imprime el resultado obtenido y pégalo en tu bloc.
Actividad 2
La imagen digital fija
En este ejercicio vas a utilizar el programa Gimp. La propuesta consiste en ubicar la imagen de una persona (tú mismo, un amigo o un familiar) en la escena representada en una obra pictórica conocida.
En la primera hoja pones las dos fotos separadas, la de la obra pictórica y la foto del personaje que has elegido(por detrás de la hoja haz un breve comentario de la obra, el autor, del personaje que hayas elegido...por qué ...y la intención que buscas con la unión de los dos).
Es importante que la iluminación de la persona sea adecuada a la escena en la que se quiere introducir.
Luego, sigue los pasos siguientes:
1...Abre las dos imágenes con el GIMP.
2...Recorta la silueta de la persona con alguna de las herramientas de selección: el lazo, las tijeras, o las rutas. Para que el contorno de corte sea más discreto debes difuminar los bordes; el valor adecuado dependerá de la resolución de la imagen.Hay que ir probando.
3...Copia la selección y pégala en la imagen de la pintura , sitúala en una capa nueva.
4...Si aguna zona de la figura debe quedar cubierta, selecciónalas y bórralas.Para acertar bien con los contornos que se deben borrar, puedes cambiar la opacidad de la capa y ver la de abajo. Otra opción es recortar la parte del fondo que debe sobreponerse y situarla en una tercera capa encima.
5...Quizá será necesario que ajustes el color y el contraste. En el menú Colores encontrarás las Opciones balance de color... y Brillo y contraste que te facilitarán el ajuste.
6...Guarda el trabajo e imprime el resultado final y pégalo en una segunda hoja de tu bloc.
Actividades 4
Las imágenes digitales
El artista norteamericano Andy Warhol perteneció al movimiento denominado arte pop. Son famosas las obras en las que repite el retrato de algún personaje conocido con colores vivos.
En este ejercicio deberás crear una obra similar a partir de una fotografía tuya.
En la primera hoja pondrás la fotografía tuya original, sin tratar y un breve comentario sobre A. Warhol y su obra, acompañado de una valoración personal.
Luego, sigue estos pasos:
1...Abre el programa Inkscape. Dale formato a la página, importa tu fotografía y vectorízala.
Hazlo con los mismos valores que has aplicado en la actividad 1.
2...Guarda el archivo, imprime el resultado obtenido y pégalo en tu bloc. Con la imagen que has conseguido deberás crear una composición colorista.
3...Realiza ahora cuatro copias de la imagen vectorial y colócalas como en la ficha de la página 39 . Como ya has hecho en la actividad 1, desagrupa cada imagen y cambia los colores de las formas. Trabaja con colores contrastados para obtener un resultado impactante.
5...Imprime el resultado final y pégalo en tu bloc .
Recordad que el cuaderno se entrega el día del examen y que su nota hace media con la que saquéis en el examen.
¡¡¡MUY IMPORTANTE!!! Hay que traer el material necesario para la realización del examen, de no ser así se suspenderá el mismo.
Materiales:
Boli...lápiz duro...borrador...sacapuntas...lápices de colores o rotuladores...una regla numerada, escuadra, cartabón y compás
NO SE DEJARÁ A NADIE QUE PRESTE O PIDA MATERIAL...suspenderían las dos persona implicadas el examen.
¡¡¡¡No lo dejéis para última hora!!!!

¡¡¡¡Recuerda!!!!
Os voy a hacer un "recordatorio" de los trabajos que tenéis que entregar en Septiembre y reforzar lo que tenéis que estudiar.
Con una buena organización y "con ganas" os dará tiempo de sobra, primero tenéis que plantearos la forma de actuar ante el examen...
Espero que hayas optado por quedarte conmigo...y pasar al año que viene "limpio"...pues..ánimo y ¡¡empezamos!!.
Bueno, sabéis que la asignatura se divide en dos partes:
una teórica (estudiar los siete temas que hemos visto en el curso, tienes el libro digital a tu disposición en ecasals.net con la contraseña de mariah...en la parte inferior...este es el enlace directo:http://www.ecasals.net/index.php?ps=0be95bd55f4e2f414330b94ed744a2a15c03444d2db404a7ae41214845aa456e73c6bf7ef8&user=mariah , haz hincapié en las preguntas de verdadero y falso de "modela tus competencias" y en lo que se amplía de teoría en los dossier de teoría de 3º)
y otra práctica (las fichas, que en verano serán sustituidas por un mínimo de actividades referentes a ellas...además también habrá parte práctica en el examen sobre las vistas de una pieza, en la mayor parte)
Se presentarán en un bloc de Din A-3, con el nombre y el curso en la cubierta.
Las actividades se presentarán en orden, poniendo en la parte inferior derecha qué actividad es y por detrás de cada hoja se explicará detalladamente los pasos que se han seguido, dificultades que se han tenido durante los ejercicios..."novedades" que hayas incluido...etc.
¿Cómo empezamos?
Tema 1 Actividad 5
Imágenes bivalentes
Tienes que crear una imagen de este tipo siguiendo los siguientes pasos...En la primera hoja, y como primer paso, realiza dos pruebas a partir de las imágenes proporcionadas( las de las ficha y las que te proporciono aquí). Modifica los contornos hasta que la parte que ahora hace de fondo represente algo. Trabaja con lápiz blando para poder borrar fácilmente los trazos de prueba. Al final puedes presentar los esbozos con rotulador.
En la segunda hoja, realizaremos el segundo paso: debes elegir la imagen que más te guste, y realizar la versión definitiva de la imagen bivalente que más te haya gustado de las tres que hayas diseñado en la hoja anterior. Escoge la técnica más adecuada a las características del diseño que has elegido. Si tienes que elaborar el trabajo con tintas planas, la pintura al temple o el papel recortado son las técnicas más adecuadas. En cambio, si quieres realizar un trabajo con colores matizados, es preferible utilizar los lápices de colores o la acuarela.
Tema 2 Actividad 3, 4 y 5
Actividad 3
Aspectos comunicativos del color
El color es uno de los elementos fundamentales del lenguaje visual por sus propiedades expresivas. Dinamismo, elegancia, frescura, tranquilidad, placidez ...son sensaciones en las que la expresividad del color juega un papel determinante.
En este ejercicio debes manipular la forma y el color de las palabras con el objetivo de que se refuercen mutuamente para conseguir que su significado sea más expresivo. Fíjate en los ejemplos de los graffitis y las fotos que tienes aquí y en la ficha.
Dibuja suavemente con lápiz hasta que obtengas el efecto deseado y, después, acaba el trabajo con rotuladores o tintas de colores. La acuarela puede ser también una buena técnica para este trabajo.
Puedes ampliar tus conocimientos de las diferentes técnicas en los siguientes enlaces...elige el que creas más adecuado a tus diseños...
Lápices de colores aquí
Acuarela aquí
Acrílico aquí
El ejercicio hay que hacerlo en dos hojas, la primera que corresponda a la palabra: "Flexible" y la segunda hoja a la palabra "Horror", dando a sus letras las formas y los colores más adecuados a su significado para reforzar la sensación indicada.
Actividad 4
Color
El "Fauvismo" se puede considerar el primer movimiento artístico de vanguardia del siglo XX. Fauve significa "salvaje", y representó una ruptura radical con el tratamiento que, hasta entonces se había concedido al color de las composiciones artísticas.
Henri Matisse Retrato de A.Derain.1905
Retrato de A.Derain.1905 Gran interior rojo.1948 Frutos y bronce 1910
Primero, dibuja con lápiz la distribución de los elementos y después añade el color con barras de ceras, con fuerza y determinación. El color es el protagonista de estos dos trabajos.
Técnica de Ceras aquí
Actividad 5
Color
Elige una de las dos pruebas de bodegones que has elaborado en la hoja anterior y realiza la interpretación definitiva adaptada a la hoja del bloc. Esta vez tienes que utilizar una técnica mixta, es decir que debes mezclar diferentes materiales para potenciar la expresividad del trabajo: pasteles, temple, ceras, collage de papeles o de otros materiales...Tienes que actuar con valentía y trasgresión y, sobre todo, recuerda que el color es el protagonista de este trabajo.
Técnica de Pastel aquí
Técnica de gouache aquí
Técnica de collage aquí
Tema 3 Actividad 2
La composición artística
Los mosaicos nazaríes se caracterizan porque el módulo que los forma se ha construido modificando una figura geométrica básica. La figura resultante tiene la misma superficie que el original pero diferente forma.
Debes realizar tu propio mosaico, partiendo de un cuadrado, usa el mismo principio que los nazaríes .Fíjate en las siguientes imágenes:

Primer paso: Recorta una parte del cuadrado y ve añadiéndola en una posición distinta hasta completar el módulo, dibujando el proceso en varios pasos (como se ve en la imagen en el llamado"pez volador")
Segundo paso:ya en la siguiente hoja, dibuja con lápiz sobre una cuadrícula, que deberás hacer previamente de
0,5 x 0,5cm, la red modular del mosaico y aplica color con la técnica que creas que es más adecuada.
Tema 4 Actividades 5, 6 y 7
Cuando el Arte nos habla
El retrato es un género artístico cultivado desde la Antigüedad hasta nuestros días. El artista puede elegir entre un amplio repertorio de estrategias compositivas y expresivas. Para conseguir representar mejor el personaje y su psicología muchas veces se incluye algún elemento asociado a la profesión o a las aficiones del retratado.
Los ejemplos que se reproducen son retratos, autorretratos o caricaturas de pintores que reflejan varias maneras de componer, diferentes estilos y expresividades. En todos los casos, los artistas han incluido la paleta de pintor como atributo de la profesión.
W.Hogarth,pintando a la musa de la comedia. 1764
Edgar Degás. Retrato de Henri Michel-Levy en su estudio.1879
Marc Chagall Autorretrato con siete dedos.1912
Ernst Ludwig Kirchner Alegoría del pintor 1920
Caricatura de pintor
Actividad 5
Escoge una de estas obras para analizar: Pintor-Opción compositiva utilizada-Explica por qué con un esquema-Tipo de expresividad. Puedes realizar la actividad en una hoja a parte y graparla junto con las siguientes actividades.
Actividad 6
En una hoja:Elabora un autorretrato que incluya elementos que representen alguna de tus aficiones. Ten en cuenta las posibilidades compositivas y las expresivas cuando te plantees la imagen.
Elige la técnica más adecuada y piensa si quieres utilizar el blanco y negro o el color. Realiza primero varios borradores o bocetos para poder probar varias formas de hacerlo y, elegir posteriormente el definitivo.
Actividad 7
Escoge uno de los borradores que has elaborado en el ejercicio anterior y traspásalo a otra hoja del bloc realizando buenos acabados. Utiliza la técnica más adecuada según los resultados que quieras conseguir.
Técnicas secas
El sistema diédrico
Los fundamentos del sistema diédrico
El sistema diédrico permite representar de manera precisa las formas tridimensionales de un objeto. El alzado , la planta y el perfil son las vistas principales. En el ejemplo resuelto puedes verlas representadas con las correspondencias coloreadas: el rojo relaciona las alturas, el verde hace corresponder las anchuras u el azul concuerda las profundidades del objeto.
Actividad 1
Debes realizar y completar la representación diédrica de las piezas de la ficha(página 25) tal como se ha hecho en el ejemplo. Dibuja las vistas que faltan y traza las líneas de correspondencia con los colores indicados.
Ten en cuenta lo siguiente:
*La correspondencia entre planta y perfil, indicada en color azul, puedes trazarla con rectas de una inclinación de 45º
*La posición de las vistas está indicada en cada caso con un triángulo de colores.
*Los colores indicados en la perspectiva te ayudarán a interpretar las medidas de cada objeto.
*Recuerda que las líneas ocultas se tienen que dibujar con línea de trazos.
*Empieza dibujand en lápiz y cuando estés seguro del resultado obtenido repásalo con un rotulador negro.
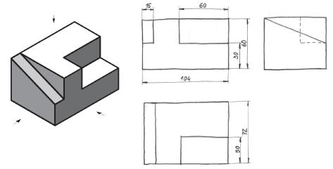
Actividad 4
La normalización industrial
El croquis acotado es el primer paso en la representación de la forma y las dimensiones de un objeto. Se realiza a mano alzada respetando las normas de representación. El dibujo de las vistas es aproximado, pero se procura respetar las proporciones entre las formas. Después se acota indicando las medidas reales del objeto. Abajo puedes ver un ejemplo.
Realiza los croquis acotados de los dos objetos representados en la ficha. Primero, representa a mano alzada las vistas con lápiz duro. Añade las correcciones que sean necesarias para obtener un buen resultado. Repasa las líneas definitivas con lápiz blando para obtener el trazado grueso con los contornos. Finalmente, añade las acotaciones que concretarán las dimensiones de cada pieza. Obtendrás las dimensiones midiendo con la regla directamente con la perspectiva representada. Recuerda que cada dimensión debe figurar sólo una vez en la vista que mejor la represente.
Actividades 5 y 6
El programa de dibujo vectorial QCAD permite crear planos con gran precisión. En la próxima actividad deberás usarlo para crear el plano de la pieza representada en perspectiva militar.
Primero elaborarás el croquis acotado de la pieza con las tres vistas, planta, alzado y perfil. Dibújalas en la primera hoja (que servirá para hacer el trabajo de la próxima actividad). Usa lápiz duro y blando para poder distinguir el grosor de las líneas.
Primera hoja:
Traspasa el croquis al programa QCAD. Sigue estos pasos:
1. Abre el programa y define los valores de tu dibujo. Haz clic en Editar/Preferencias para el dibujo actual...Formato del papel A4, Retrato (luego lo pegas en la hoja de tu bloc):Unidades:mm. Activa la parrilla y que el espaciado X e Y sea 5. Guarda el archivo, ve guardándolo después de cada paso para no perder el trabajo que vas realizando.
2. Crea las siguientes capas de trabajo:
3. Activa la capa O, haciendo clic en la ventana de las capas. Con las herramientas Línea y Rectángulo, dibuja el marco y el cajetín con las medidas que se indican. La parrilla de 5 mm que has definido te ayudará a hacerlo fácilmente con la herramienta de forzar el cursor. Complétalo con los datos dibujando los los nombres con la herramienta de texto.
4. Activa la capa Vistas. Con las herramientas de dibujo traza las vistas. Si te equivocas podrás modificarlo (borrar, alargar, recortar, mover...) con las herramientas del menú Modificar.
5. Activa la capa Ejes. Dibuja los ejes de las vistas. Las líneas trazadas en esta capa se dibujarán con línea de trazo y punto, y de color violeta.
6. Activa la capa Oculto. Dibuja las líneas ocultas que , en esta capa, quedarán con línea de rayas y color blanco.
7. Activa la capa Cotas. Dibuja las cotas necesarias para concretar las medidas de la pieza. Guarda el dibujo acabado.
A la hora de imprimir deberemos tener en
cuenta los colores que hayamos elegido para cada una de las capas. Así, tendremos que asociar el
color de las líneas vistas al grosor de línea más grande, y sin embargo, las líneas de la capa de ejes las
haremos menos gruesas, como cuando trabajamos con medios manuales asignando valores de línea.
Segunda
hoja:
Una vez que ya has dibujado el plano industrial de la pieza, toca imprimirlo (y lo pegas en la hoja).
Para poder ver cómo quedará el plano, haz clic sobre el icono previsualización. Aparecerá tu dibujo sobre una hoja blanca. Con la herramienta de posicionar podrás centrar el plano. Luego imprime la versión definitiva en un DIN A4.
Para este tema puedes consultar, también en este blog, la siguiente entrada:
http://henarte.blogspot.com.es/2012/07/dibujo-tecnico-piezas-axonometrico.html
http://henarte.blogspot.com.es/2012/07/dibujo-tecnico-piezas-axonometrico.html
Tema 6 Actividades 2, 3, 4 y 6
Dibujo en perspectiva
La perspectiva cónica
Actividad 2
Siguiendo el ejemplo, deberás trazar la perspectiva de la habitación que encontrarás representada.Calca el plano del cuadro con los elementos geométricos correspondientes que está preparado en la ficha a la hoja del bloc: LT, LH, P, D1 y D2. Deberás dibujar la perspectiva a escala 3:1 ; es decir, deberás multiplicar por tres las medidas de los datos.
Empieza trabajando con lápiz, después repasa el resultado con rotulador de punta fina y, finalmente, acaba tu dibujo coloreando el suelo, las paredes, la puerta, la ventana y los cuadros.
Actividades 3 y 4
La ambientación de las perspectivas
Primera hoja:
Sombras en perspectiva axonométrica.
Las sombras incrementan la ilusión de corporeidad de los cuerpos. Para dibujarlas en perspectiva axonométrica debemos situar la posición del sol y la dirección de las sombras . El triángulo ABC contiene la dirección de los rayos luminosos (lado AC), la dirección de las sombras (lado BC) y la altura del sol (lado AB). Para determinar la extensión de la sombra, deben buscarse los puntos de proyección sobre el suelo trazando rectas paralelas al triángulo. La dirección del rayo, que pasa por la parte superior del objeto, y la dirección de la sombra, que pasa por la parte inferior, se cortan en un punto del suelo que determina hasta donde llega la sombra, como puedes observar en el ejemplo.
Utiliza el mismo triángulo de iluminación indicando en el ejemplo para trazar las sombras de los tres objetos representados . Trabaja con lápices de grafito y concreta la sombra propia y la sombra proyectada de cada cuerpo con distintos tonos de gris.
Segunda hoja:
Sombras en perspectiva cónica.
El método para trazar sombras en perspectiva cónica se ajusta al principio general que dice que todas las rectas paralelas a una dirección convergen en un mismo punto de fuga. Por lo tanto, se debe situar la posición del Sol (S) y su proyección sobre la línea de tierra (S').
Desde estos puntos deben trazarse las rectas que pasan por la parte superior e inferior de cada lado del objeto para obtener la proyección de la sombra. En el ejemplo, el punto P es hasta donde llega la sombra producida por una de las aristas verticales del objeto.
Siguiendo el procedimiento explicado, traza las sombras que la iluminación solar producirá sobre el objeto representado. Como en la actividad anterior, trabaja con lápiz de grafito y concreta con tonos de gris las sombras obtenidas.
Actividad 6
Google Sketch Up
Divide una hoja del bloc en dos partes.
Una vez que te hayas familiarizado con el programa , realiza el diseño de un parque público similar al ejemplo. Puedes reproducir los mismos elementos , cambiándolos de lugar o modificándolos la forma, pero intenta conseguir un resultado realista. Después aplicarás los materiales y añadirás los componentes hasta obtener una buena ambientación. Finalmente, aplica la representación de formas.
Antes de empezar, con lápiz y en la mitad de la izquierda , deberás elaborar un croquis, con la planta y el alzado, para decidir la posición de los elementos principales que constituyen el diseño. Cuando hayas realizado tu diseño, imprime el resultado y pégalo en la otra mitad de la hoja.
Las imágenes digitales
Actividad 1
Píxeles, vectores y colores.
En este ejercicio vas a utilizar un programa de dibujo que permite transformar una imagen fotográfica bitmap en una imagen vectorial, llamado INKSCAPE.
Deberás crear un cartel que anuncie un acontecimiento deportivo, siguiendo los pasos siguientes:
1...Consigue una fotografía de tu deporte favorito.
2...Abre el programa de dibujo vectorial Inkscape.
3...Dale formato a la página con la opción Archivo/Propiedades del documento...selecciona A4 vertical.
4...Importa tu fotografía con Archivo/Importar...
5...Vectoriza la foto con la opción Trayecto/vectorizar Mapa de Bits...
6...Sobre la fotografía aparecerá el dibujo vectorial. Este dibujo está constituido por cuatro formas superpuestas que están agrupadas (corresponden a las cuatro pasadas indicadas en el paso anterior)Para desagruparlas y poder modificarlas activa la opción Objeto/Desagrupar.
7...Una vez desagrupadas, podrás cambiar el color de cada forma. Para que resulte más sencillo, puedes desplazarlas.Las herramientas de rellenar y de Degradados te ayudarán a . modificar los colores. Cuando hayas acabado, vuelve a colocarlas en su posición.
8...Puedes aplicar algún filtro para mejorar el resultado.
9... Sitúa el texto para anunciar el acontecimiento, indica la fecha y el lugar donde se llevará a cabo.
10...Guarda el trabajo, imprime el resultado obtenido y pégalo en tu bloc.
Actividad 2
La imagen digital fija
En este ejercicio vas a utilizar el programa Gimp. La propuesta consiste en ubicar la imagen de una persona (tú mismo, un amigo o un familiar) en la escena representada en una obra pictórica conocida.
En la primera hoja pones las dos fotos separadas, la de la obra pictórica y la foto del personaje que has elegido(por detrás de la hoja haz un breve comentario de la obra, el autor, del personaje que hayas elegido...por qué ...y la intención que buscas con la unión de los dos).
Es importante que la iluminación de la persona sea adecuada a la escena en la que se quiere introducir.
Luego, sigue los pasos siguientes:
1...Abre las dos imágenes con el GIMP.
2...Recorta la silueta de la persona con alguna de las herramientas de selección: el lazo, las tijeras, o las rutas. Para que el contorno de corte sea más discreto debes difuminar los bordes; el valor adecuado dependerá de la resolución de la imagen.Hay que ir probando.
3...Copia la selección y pégala en la imagen de la pintura , sitúala en una capa nueva.
4...Si aguna zona de la figura debe quedar cubierta, selecciónalas y bórralas.Para acertar bien con los contornos que se deben borrar, puedes cambiar la opacidad de la capa y ver la de abajo. Otra opción es recortar la parte del fondo que debe sobreponerse y situarla en una tercera capa encima.
5...Quizá será necesario que ajustes el color y el contraste. En el menú Colores encontrarás las Opciones balance de color... y Brillo y contraste que te facilitarán el ajuste.
6...Guarda el trabajo e imprime el resultado final y pégalo en una segunda hoja de tu bloc.
Actividades 4
Las imágenes digitales
El artista norteamericano Andy Warhol perteneció al movimiento denominado arte pop. Son famosas las obras en las que repite el retrato de algún personaje conocido con colores vivos.
En este ejercicio deberás crear una obra similar a partir de una fotografía tuya.
En la primera hoja pondrás la fotografía tuya original, sin tratar y un breve comentario sobre A. Warhol y su obra, acompañado de una valoración personal.
Luego, sigue estos pasos:
1...Abre el programa Inkscape. Dale formato a la página, importa tu fotografía y vectorízala.
Hazlo con los mismos valores que has aplicado en la actividad 1.
2...Guarda el archivo, imprime el resultado obtenido y pégalo en tu bloc. Con la imagen que has conseguido deberás crear una composición colorista.
3...Realiza ahora cuatro copias de la imagen vectorial y colócalas como en la ficha de la página 39 . Como ya has hecho en la actividad 1, desagrupa cada imagen y cambia los colores de las formas. Trabaja con colores contrastados para obtener un resultado impactante.
5...Imprime el resultado final y pégalo en tu bloc .
Recordad que el cuaderno se entrega el día del examen y que su nota hace media con la que saquéis en el examen.
¡¡¡MUY IMPORTANTE!!! Hay que traer el material necesario para la realización del examen, de no ser así se suspenderá el mismo.
Materiales:
Boli...lápiz duro...borrador...sacapuntas...lápices de colores o rotuladores...una regla numerada, escuadra, cartabón y compás
NO SE DEJARÁ A NADIE QUE PRESTE O PIDA MATERIAL...suspenderían las dos persona implicadas el examen.
¡¡¡¡No lo dejéis para última hora!!!!
¡¡¡¡Recuerda!!!!
IIIº ESO Ejercicios + Examen
En un bloc de Din A-3, realizar los siguientes ejercicios según las fichas que hemos utilizado en el curso:
Tema1.Actividad 5 /Tema 2.Actividades 3,4 y 5 /Tema 3.Actividad 2/ Tema 4. Actividades 5,6 y 7/ Tema 5. Actividades 1, 4, 5 y 6 / Tema 6. Actividades 2, 3, 4 y 6/ Tema 7. Actividades 1, 2, y 4.
Se valorará presentación y buena ejecución.







No hay comentarios:
Publicar un comentario